Private Mountain Paradise on 4.2 Acres with Southern Exposure and Big Mountain Views!
658 Continental Drive
Sapphire, North Carolina 28774
MLS# 1001930
Breathtaking Southern Mountain Views at an elevation of 4,100 feet.
Experience the spacious open floor plan featuring a vaulted living area complete with a stone gas fireplace. The modern kitchen is generously sized, while the master bedroom suite offers a retreat of comfort. Enjoy outdoor living on the open deck and the large screened-in porch, which also boasts a stone wood burning fireplace with gas igniter.
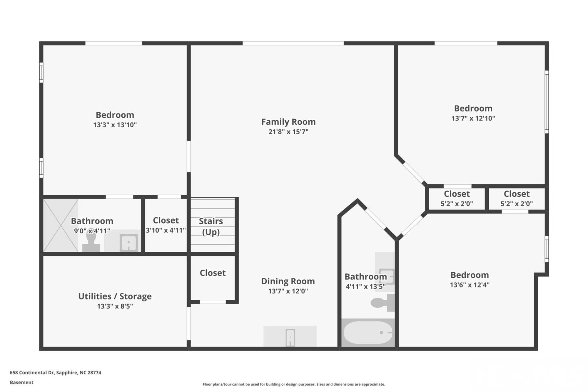
Downstairs has a large family room, plenty of storage, a second master suite, and 2 more bedrooms sharing another full bathroom, plus another big deck with southerly mountain views. This fantastic home also offers a whole-house generator and weatherproof entry from the 2-car garage.
This well maintained home comes fully furnished and move-in ready to enjoy fall in the mountains!
Directly across the street from the Divide Pavilion, the Panthertown Valley National Forest and the Eastern Continental Divide.
Exclusively Listed By Bil
Bill Kruckenberger
Broker / Owner
233777
Office: (828) 743-0466
Mobile: (828) 506-8398
“The Sapphire Valley Real Estate Expert -- Market Knowledge, Experience & Negotiation Skills - No one knows the Sapphire Valley Resort like Bill”
25 years experience selling people their mountain dreams! I specialize in Sapphire Valley Resort properties, selling over 300 properties in the Sapphire Valley Resort.
Sapphire Valley Real Estate & Rentals
25687
3065 Hwy 64 #Suite A, Sapphire, North Carolina 28774




























































